Images - Québec

明晰的流線匯成纖巧造型,展現於溫潤潔白的陶瓷之上,讓簡潔明了的主線始終貫穿於Kobar空間。

Gallery

  • kobar image 1
  • kobar image 2
  • kobar image 3
  • kobar image 4
  • kobar image 5

Series Products

kobar toilet

KC05113W (305 Rough-in)
KC05114W (400 Rough-in)

  • One-piece Toilet
  • Dimension: 720*370*835mm
  • Flush Rate: 6L/4.2L
  • Drainage Method: S-trap
  • Flushing Method: Sophonic Jet
  • Rough-in: 305mm/400mm
technical drawing KATA KC05113W

Click image to enlarge

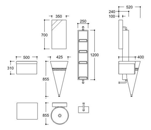
kobar furniture

KF051225

  • Bathroom Furniture
  • Main Cabinet Dimension: 500*400*310mm
  • Pedestal Basin Dimension: 425*520*855mm
  • Mirror Cabinet Dimension: 350*100*700mm
  • Side Cabinet Dimension: 250*150*1200mm
technical drawing KATA KF051225

Click image to enlarge

kobar bath

KB05111W

  • Embedded Bath
  • Size: 1700*800*400mm
  • Material: Acrylic
technical drawing KATA KB05111W

Click image to enlarge